こんにちは。福岡にてホテルや民泊、マンスリーの運営をしているあなぶきスペースシェアの野村です。
広島市中区に新しくオープンした1フロア1部屋限定のザ・ガーデンプレイス広島のご紹介をいたします。
施設概要
「ザ・ガーデンプレイス広島」はコンサートや演劇・講演会場などが多く催される広島文化学園HBGホール・JMSアステームプラザ目の前、広島市中区加古町にあります。
平和記念公園にも徒歩5分の立地で、広島への旅に最適な物件です。
おすすめポイント
1フロア1部屋のみ最大宿泊定員2名
ザ・ガーデンプレイス広島は4階建ての全3室。1フロア一組様のプレミアムな空間です。また、広さが75㎡と一般的なマンションの3LDKの広さがございます。
フロアによって定員が異なりますが、最大12名までご宿泊いただける施設となっています。友人家族同士の旅行やグループ旅行・3世代での旅行も可能です!
全室キッチン・洗濯機・バスルーム・シャワールーム付き
室内には65インチの大型TVが完備され、キッチンや調理器具・食器類もございます。狭さを感じさせることの無い広々空間は、長期滞在にも最適です。
また、宿泊人数が多くなると困るのがお風呂問題。さっと済ませたい方にもおすすめなシャワールームがお風呂とは別に各部屋にございます。
洗濯機も全部屋完備で荷物を少なくすることができますね!
各お部屋のご紹介
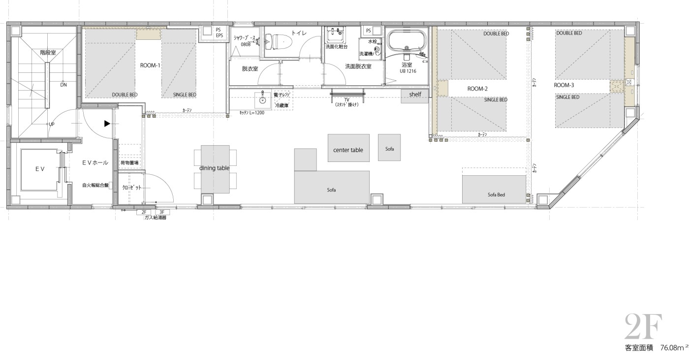
【2F Brilliant Winter UP TO 10】
真っ赤なソファが目を引きます。寝室はゆるくカーテンで仕切ることができます。
■ベッドルーム①
・ダブルベッド 1台
・シングルベッド 1台
■ベッドルーム②
・ダブルベッド 2台
・シングルベッド 1台
リビングにソファベッド1台ございます。
★最大10名でご宿泊いただけます。

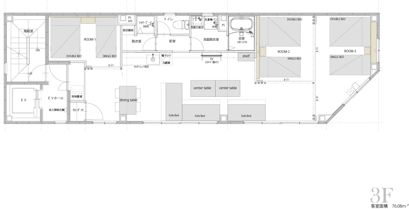
【3F Bright Spring UP to 12】
木目がポイントのナチュラルな雰囲気が落ち着くインテリア。
■ベッドルーム①
・ダブルベッド 1台
・シングルベッド 1台
■ベッドルーム②
・ダブルベッド 2台
・シングルベッド 1台
リビングにソファベッド3台ございます。
★最大12名でご宿泊いただけます。
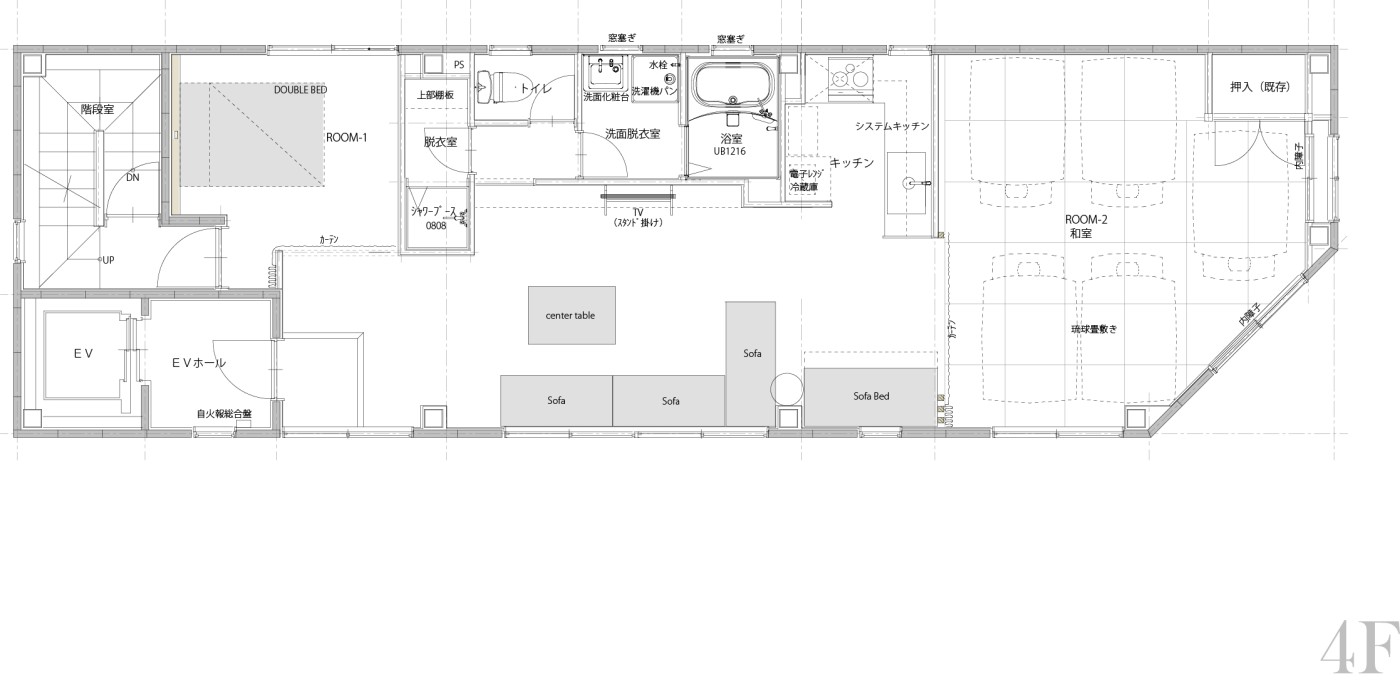
【4F Deep Autumn UP to 9】
和室タイプのお部屋。グリーンのクロスとマスタードイエローのソファがポイントです。
また、他の2部屋よりも広いシステムキッチンが備えついており、旅先でパーティーも楽しめそうです。
■ベッドルーム
・ダブルベッド 2台
■和室
・お布団 6組
リビングにソファベッド1台ございます。
★最大9名でご宿泊いただけます。

施設概要
基本情報
住所 :〒730-0812広島県広島市中区加古町5-1
アクセス:広島電鉄『市役所前』電停より徒歩約7分
駐車場 :無し 近隣コインパーキングをご利用ください
チェックイン 16:00~
チェックアウト ~10:00
最大定員:12名様(お部屋によって定員が異なります)
室内設備
<お部屋 設備>
無料Wifi/セパレートバストイレ/シャワールーム/システムキッチン/冷蔵庫/IHクッキングヒーター/電子レンジ/炊飯器/電子ケトル/食器・カトラリー/調理器具/ドライヤー/ Googleクロームキャストを全室にご用意しております。
<アメニティ類>
バスタオル/フェイスタオル/ボディソープ/シャンプー/コンディショナー/歯ブラシ/スリッパ
※ナイトウエアはございません。
まとめ
今回は自宅のようにくつろげる広々とした1フロア貸し切りのザ・ガーデンプレイス広島をご紹介いたしました。広島の中心部でコンサートやライブなどのあとに仲間とあつまって語り合うのも楽しそうですね。4Fのお部屋にはカラオケ(イヤホンで楽しめるタイプ)がありますので、盛り上がりそうです。
ご予約は以下のサイトをご確認ください。
楽天トラベル https://travel.rakuten.co.jp/HOTEL/182448/182448.html
じゃらん https://www.jalan.net/yad387488/
あなぶきスペースシェアの運営施設はこちらから
あなぶきスペースシェアでは、香川県、岡山県、広島県、福岡県、沖縄県、北海道で
民泊物件・ホテル・マンスリーマンションを運営しております。
気になることなどございましたら、下記のフォームからお問合せください!
【お問い合わせフォーム】
野村香織
野村 香織(のむら かおり)
新築マンションの販売を経てあなぶきスペースシェアにて民泊施設や無人ホテルの管理・運営をしています。
インテリアが好きで、民泊やマンスリーの開設やコーディネートを楽しく行っています。お役立ち情報や民泊・マンスリーなどの情報を発信いたします。記事を通して、民泊に少しでも興味を持っていただけたら嬉しいです。よろしくお願いいたします。
【保有資格】宅地建物取引士
最新記事 by 野村香織 (すべて見る)
- ときめき!わくわくがとまらないメイクサロンのあるお部屋 - 2022年7月13日
- New!家族におすすめAlphabed30高松兵庫町マンスリーのご紹介 - 2022年6月13日
- アルファコンフォート鹿児島マンスリーNewOpen!! - 2022年5月14日









































