こんにちは、木須です。
家族構成によってお部屋の使い方や広さって変わってくると思いませんか?
今回は40代ご夫婦のシンプルな暮らしを考えたマンションリフォームの事例をご紹介します。
リフォームの進め方もあわせてご紹介しますので、マンションリフォームをお考えの方は是非参考にしてみてくださいね。
マンションリフォームのプラン内容
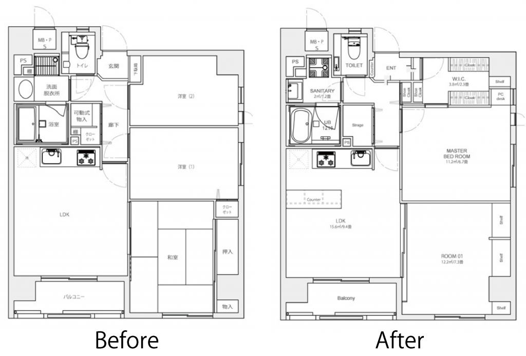
リフォームプランを考えるためにお部屋を見た際にまず気になったのは、約60㎡の専有面積で3LDKの間取りであるということでした。
キッチンも含めた約10帖のLDKに6帖の和室、約5帖の洋室が2部屋という間取りは「部屋数ではなく、なるべく1室を広く使いたい」というお客様の要望には合わない間取り。
まずこの間取りのレイアウトを変更しようと考えました。

1.3LDKから2LDK+WICに変更し、空間ひろびろ
まず和室と洋室の2部屋に焦点を当ててご夫婦の暮らし方を想像しました。
5帖の洋室2部屋よりも収納が大きくゆったりしたご夫婦の寝室として使用できるように2部屋の間仕切り壁を壊し、約7帖の洋室とウォークインクローゼットに再構築。
洋室の片隅のデッドスペースはノートパソコンを置いてお使いいただけるPCデスクを設置。
WICは洋室からも玄関からも出入りできるように考えました。
このお部屋にお住まいになるA様も
「夫が仕事から帰ってきて玄関からそのままWICに入り、そこで部屋着に着替えてから洋室を通りリビングにくる。といった流れができて、ある意味WICがオンオフできる部屋になっています。」
とのうれしいお声をいただきました。
和室は洋室に変更し、半透明の間仕切り引き戸にすることによって空間を仕切ることができます。
お客様を招いた際はすべて広げれば広々したLDKに変身。おもてなしができるくらいの空間に変わります。間仕切り引き戸を閉じても隣に人がいる気配は感じられるのでお互いに安心。
元押入れは壁をすべて壊してTVやAV機器、本などを置けるオープンな壁面収納に変更。
棚板はすべて上下に高さを可動できる棚板となっています。
2.キッチンはすっきり、使い勝手重視
生活の主役となるキッチンは壁面I型の対面に造作でオリジナルのカウンターを設置。
天板はメラミン化粧板を採用し、汚れ等に強い仕様。
内側はすべて可動棚板となっており、食器やキッチン小物をたっぷり収納できます。
カウンターは固定されていないためそのままキッチンの対面としてハイスツールを置いて食事をしたり、壁面に移動して壁沿いの収納棚として使用したりと、生活に合わせてレイアウトが可能です。
3.白を基調としたシンプルなデザインで、明るくモダンに
リフォームのプランを立てる際、白すぎるのは少し抵抗がある…という方も多くいらっしゃいます。
しかし今回は土地柄(東京都港区)やその地域に住みたいと思われているお客様を想い描いた結果、
“とにかくイメージは白く、スタイリッシュに”ということを心がけました。
そこにアクセントで一面濃紺のクロスや、狭いトイレだからこそ他の部屋とは少し違うイメージを持たせることで、
全体の空間に対して飽きがこないポイントとメリハリをつけました。
A様にも「インテリアでまず気に入った点が、白を基調にしたお部屋だったこと。
キレイに保つのは少し大変かも知れませんが(笑)
そんなに広いお部屋でなくてもすっきり広々と感じられるところがポイントでした。」と喜んでいただけました。
マンションリフォームの進め方
マンションのリフォームは一戸建と違い、いつでも好きな時に工事が実施できるわけではありません。
マンション特有の進め方がありますのでご注意ください。
- リフォーム内容を検討する
- リフォーム業者を選定する
- 見積書を取得し、内容・価格を検討する
- リフォーム業者と契約を締結する
- リフォーム申請書・行程表を管理組合へ提出し、組合承認をうける(承認まで、2週間ほどかかることが多い)※管理規約を参照
- 工事開始までに、行程表を掲示板等に掲示する
- 工事中(工事は近隣を考慮し午後5時以降及び、休祝日は工事を実施しない。)
- 工事完了(場合により管理組合の承認が必要)
まとめ
マンションリフォームは小さな工事から大きな工事までありますが、住まわれる方が満足できることが一番です。
マンションは集合住宅ですので近隣に気遣いをしながら工事を実施していただき、リフォームが完了してよりよいマンション生活を送っていただければとてもうれしいです。
木須 拓己
分譲マンション管理会社で専有部(お部屋内)の様々なサービス開発・企画の立案、リフォーム&リノベーション・室内クリーニング、インテリア商品販売等、お客様の快適な生活をサポートする部署の担当。分譲マンションの管理会社を15年務めた実体験及び情報をわかりやすく伝えるために日々仕事に励んでいます。仕事での心情:ニーズを形にする
最新記事 by 木須 拓己 (すべて見る)
- 知らないと怖い?マンションでヒートショックを防ぐ方法 - 2025年2月13日
- マンションでできる結露対策とは!? - 2023年1月18日
- マンションでDIY|棚が取付けられる壁の見分け方(ビスが打てる壁とは?) - 2022年6月8日
























